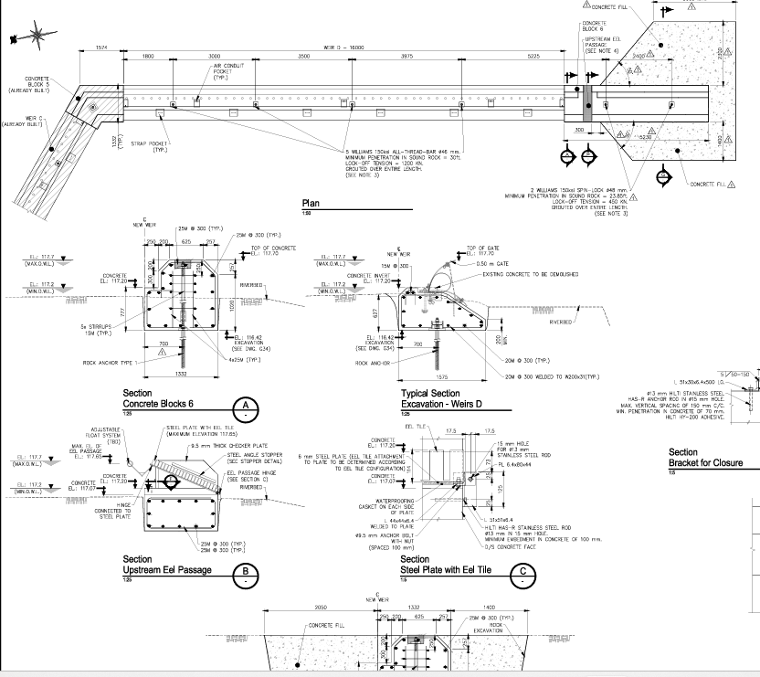
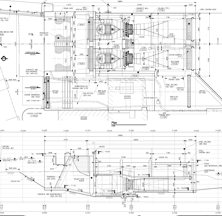
Powerhouse: 

WHERE: Enerdu Powerhouse, Ontario 

WHAT: Install a powerhouse of two turbines in river side. Replace water level adjustment system in the upstream weir. Construction detailed engineering drawings. 

(The project was realized with a cooperated company.)