Dam: 

WHERE: Rehabilitation of North Dams, Ontario 

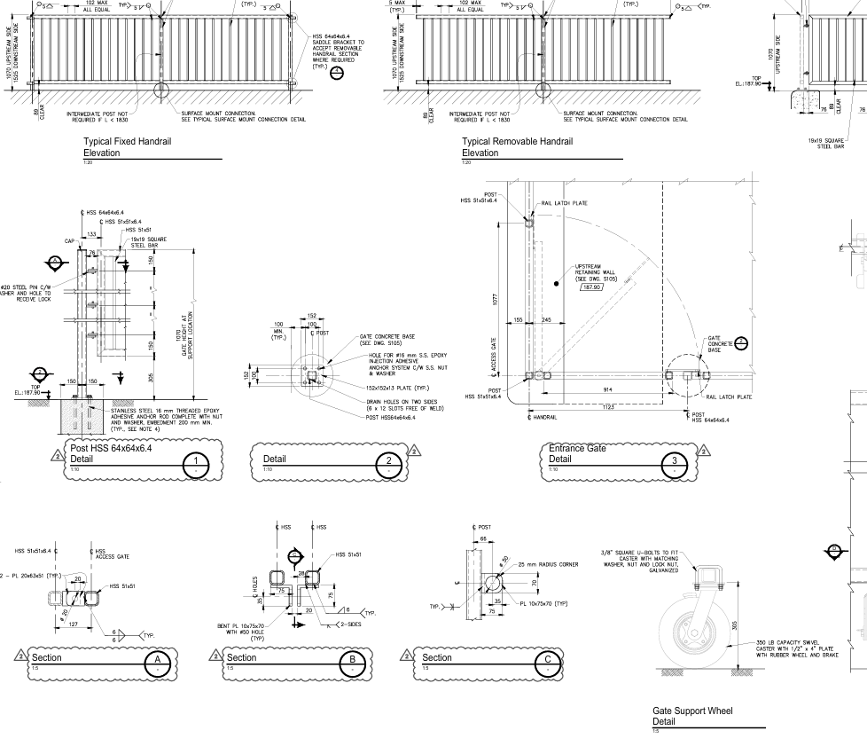
WHAT: Demolish aged dam and reconstruct new dam. Conceptual plan and detailed engineering drawings. Estimation of the quantities: excavation, backfilling and concrete. 

(The project was realized with a cooperated company.)